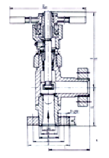
J44Y型角式截止閥的啟閉件是塞形的閥瓣,密封面呈平面或錐面,閥瓣沿流體的中心線作直線運動。閥桿的運動形式,有升降桿式(閥桿升降,手輪不升降),也有升降旋轉桿式(手輪與閥桿一起旋轉升降,螺母設在閥體上)。波紋管截止閥只適用于全開和全關,不允許作調節和節流。
|
|
|
● 設計與制造:GB12233 ● 法蘭尺寸:GB9113 ● 結構長度:GB12221 ● 檢驗與實驗:GB/T13927 |
| |
|
| |
| 【 J44H型高壓截止閥主要連接與外形尺寸 】 |
|
型 號 |
通徑 DN(mm) |
主要連接尺寸 |
外形尺寸 |
|
L |
D |
D 1 |
M |
D 2 |
b |
Z-фd |
L O |
H |
H 1 |
|
AJ44H-320 AL44H-320 |
3 |
60 |
70 |
42 |
M14×1.5 |
10 |
15 |
3-16 |
100 |
71 |
77 |
|
6 |
60 |
70 |
42 |
M14×1.5 |
10 |
15 |
3-16 |
150 |
80 |
94 |
|
J44Y-160 L44Y-160 |
10 |
90 |
95 |
60 |
M24×2 |
10 |
20 |
3-18 |
200 |
260 |
275 |
|
15 |
105 |
95 |
60 |
M24×2 |
16 |
20 |
3-18 |
200 |
268 |
288 |
|
J44Y-320 L44Y-320 |
10 |
90 |
95 |
60 |
M24×2 |
10 |
20 |
3-18 |
200 |
268 |
275 |
|
15 |
105 |
105 |
68 |
M33×2 |
17 |
20 |
3-18 |
200 |
268 |
288 |
|
J44Y-160 L44Y-160 |
25 |
120 |
102 |
68 |
M33×2 |
28 |
20 |
3-18 |
300 |
225 |
245 |
|
32 |
135 |
115 |
80 |
M42×2 |
37 |
22 |
4-18 |
300 |
222 |
248 |
|
40 |
165 |
165 |
115 |
M52×2 |
47 |
28 |
6-26 |
350 |
265 |
300 |
|
50 |
190 |
165 |
115 |
M64×3 |
59 |
32 |
6-26 |
400 |
303 |
345 |
|
J44Y-320 L44Y-320 |
25 |
120 |
115 |
80 |
M42×2 |
35 |
22 |
4-18 |
300 |
225 |
245 |
|
32 |
135 |
135 |
95 |
M48×2 |
41 |
25 |
4-22 |
300 |
222 |
248 |
|
40 |
165 |
165 |
115 |
M64×3 |
58 |
32 |
6-26 |
350 |
265 |
300 |
|
50 |
190 |
200 |
145 |
M80×3 |
70 |
40 |
6-29 |
400 |
303 |
345 |
|
GJ44H-160 GL44H-160 |
65 |
215 |
200 |
145 |
M80×3 |
73 |
40 |
6-29 |
710 |
430 |
490 |
|
80 |
260 |
225 |
170 |
M100×3 |
93 |
50 |
6-33 |
810 |
520 |
600 |
|
100 |
290 |
260 |
195 |
M125×4 |
115 |
60 |
6-36 |
850 |
595 |
685 |
|
GJ44H-320 GHJ44H-320 |
65 |
215 |
225 |
170 |
M100×3 |
90 |
50 |
6-33 |
710 |
430 |
490 |
|
80 |
260 |
260 |
195 |
M125×4 |
112 |
60 |
6-36 |
810 |
520 |
600 |
|
100 |
290 |
300 |
235 |
M155×4 |
130 |
75 |
8-39 |
850 |
595 |
285 | |
| 【 J44H型高壓截止閥性能與規范 】 |
|
公稱壓力 |
16 |
32 |
Mpa |
|
殼體試驗 |
24 |
48 |
|
密封試驗 |
17.6 |
35.2 |
|
氣密封試驗 |
0.5-0.7 |
|
適用介質 |
C |
P |
R |
|
水、油品、蒸汽 |
氮氫混合氣 |
堿液、液氨 |
|
適用溫度(℃) |
≤200 | |