ZAZT、ZAZTC型電動隔膜調節閥由DKZ電動執行機構和隔膜調節閥組成,以220V AC電源為動力,接受標準信號O~10mA DC或4~20mA DC的電信號,實現對工藝管道中強酸、強石金等腐蝕介質及高粘度、有害介質的流量調節與控制。應用于石油、化工、冶金等耐蝕系統中。
產品特點:閥流通阻力小,流通能力大,無填料函,無外泄漏,具有耐腐、防火、防毒,安全可靠的特點,可根據不同的襯里和隔膜,獲得良好的腐蝕性能。
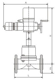
ZAZT、ZAZTC型電動隔膜調節閥結構圖:

電動隔膜調節閥主要性能參數:
公稱通徑 mm |
15 |
20 |
25 |
32 |
40 |
50 |
65 |
80 |
100 |
125 |
150 |
200 |
250 |
額定流量系數 Kv |
8 |
12 |
16 |
38 |
60 |
68 |
90 |
150 |
300 |
500 |
600 |
1200 |
2000 |
公稱壓力 Mpa |
1.0 |
執行機構 |
Ⅱ型 |
DKZ-310 |
DKZ-310 |
DKZ-310 |
DKZ-410 |
DKZ-410 |
DKZ-510 |
Ⅲ型 |
DKZ-310C |
DKZ-310C |
DKZ-310C |
DKZ-410C |
DKZ-410C |
DKZ-510C |
有效推力 (N) |
1000 |
4000 |
6400 |
工作行程 (mm) |
10 |
16 |
25 |
40 |
60 |
允許壓差 |
P 1 = △ P |
1.0 |
0.89 |
1.0 |
1.0 |
1.0 |
1.0 |
1.0 |
0.6 |
0.38 |
0.15 |
0.057 |
P 1 =P 2 |
1.0 |
0.44 |
1.0 |
1.0 |
0.75 |
0.9 |
0.55 |
0.3 |
0.19 |
0.075 |
0.028 |
法蘭標準 |
JB78 |
流量特征 |
近似快開(調節閥) |
電源電壓 |
220V 50Hz |
出廠狀態 |
電開(如需電關、訂貨時應注明) |
ZAZT、ZAZTC型電動隔膜調節閥性能指標
項目 |
指標值 |
基本誤差 % |
± 3.5 |
回差 % |
≤2.5 |
死區 % |
≤3 |
始終點偏差 |
±2.5 |
額定行程偏差 % |
±2.5 |
純滯后 |
≤ 1S |
允許泄露 L/h |
橡膠隔膜片為 “0” ,聚四氟乙烯隔膜為 0.5%× 閥額定容量(許用壓差下的水) |
絕緣電阻 |
不小于 20M Ω |
阻尼特征 |
不大于 3 周半 |
ZAZT、ZAZTC型電動隔膜調節閥外型尺寸: 單位:mm
公稱通徑 |
ZAZT 型 |
ZAZTC 型 |
|
A |
H |
H 1 |
L |
A |
H |
H 1 |
L |
15 |
460 |
515 |
48 |
140 |
340 |
754 |
48 |
140 |
20 |
460 |
515 |
53 |
145 |
340 |
755 |
53 |
145 |
25 |
460 |
520 |
58 |
155 |
340 |
760 |
58 |
155 |
32 |
460 |
525 |
68 |
165 |
340 |
765 |
68 |
165 |
40 |
460 |
527 |
73 |
190 |
340 |
767 |
73 |
190 |
50 |
460 |
530 |
80 |
210 |
340 |
770 |
80 |
210 |
65 |
460 |
540 |
90 |
240 |
340 |
780 |
90 |
240 |
80 |
530 |
590 |
98 |
270 |
430 |
1182 |
98 |
270 |
100 |
530 |
595 |
108 |
335 |
430 |
1188 |
108 |
335 |
125 |
630 |
687 |
123 |
375 |
430 |
1280 |
123 |
375 |
150 |
630 |
695 |
140 |
410 |
430 |
1288 |
140 |
410 |
220 |
630 |
728 |
168 |
540 |
430 |
1321 |
168 |
540 |
250 |
630 |
733 |
200 |
650 |
430 |
1386 |
200 |
650 |
ZAZT、ZAZTC型電動隔膜調節閥閥體材質、襯里和隔膜片代號
基體和襯里 |
HT200 |
ZG1Cr18Ni9Ti |
隔膜片 |
無 |
襯 F46 |
襯 F3 |
氯丁橡膠 |
氟橡膠 |
襯 F46 |
代號 |
1 |
3 |
2 |
4 |
|
1 |
3 |
2 |